De Speedgate is een snelvouwhekwerk bestaande uit meestal 4 panelen. De panelen vouwen zich naar twee kanten op. De snelheid waarmee dit gebeurd ligt ongeveer op 1 meter per seconde. Dit betekend dat een sparing van 4 meter breed voorzien van een Speedgate in ongeveer 4 seconde geheel geopend of gesloten wordt. De snelheid van een Speedgate komt overeen met de snelheid van een slagboom, echter wanneer de Speedgate gesloten is, dan is de gehele toegang afgesloten. Persoon of voertuig kan de Speedgate niet passeren. De Speedgate is maatwerk. Deze wordt ingemeten op locatie.
De Speedgate DR2 is ontwikkeld om gecontroleerd toegang te verlenen aan voertuigen of personen tot afgeschermde terreinen of ruimtes. De Speedgate DR2 kan in veel verschillende vormen worden besteld. Voor elke situatie is er een geschikte uitvoering van de Speedgate DR2.
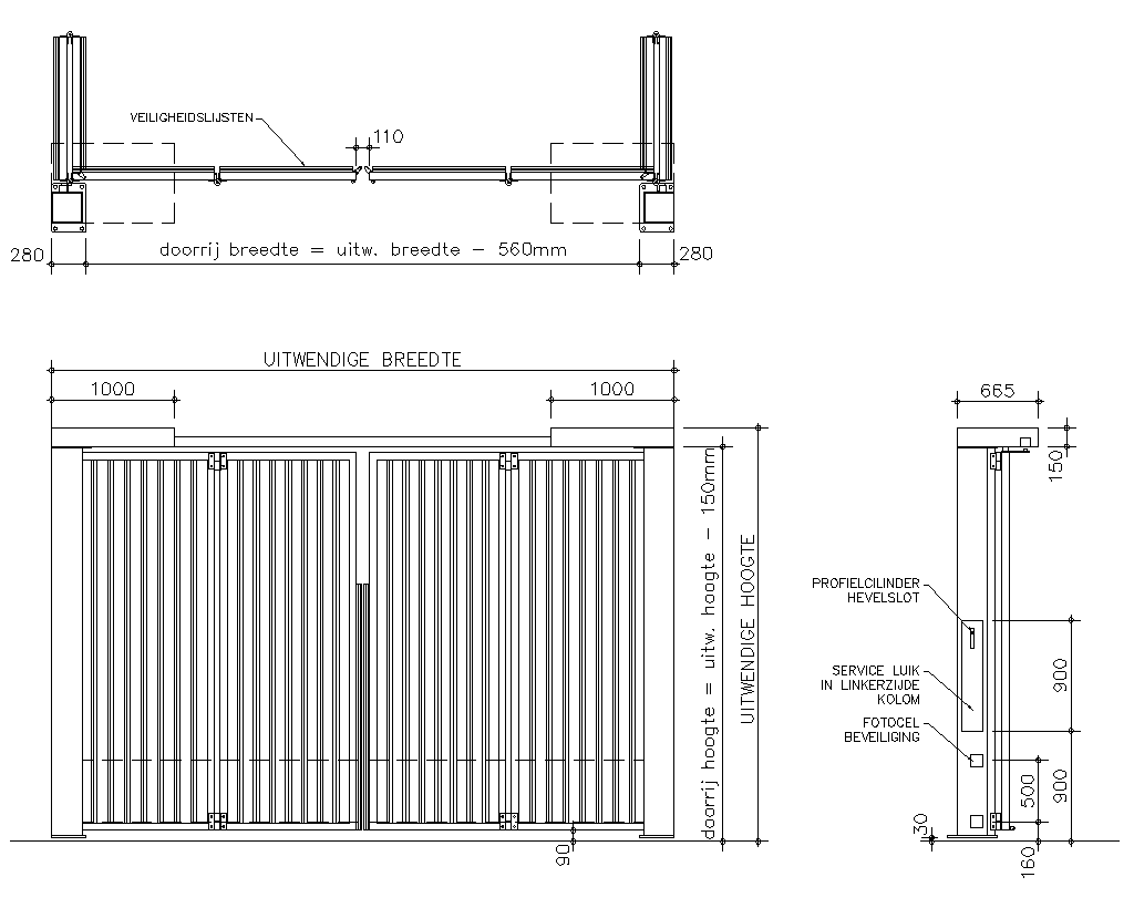
De Speedgate DR2 is er in zowel een bovengeleiding als een ondergeleiding. De aandrijving zit in beide gevallen altijd in een afgeschermde behuizing boven de Speedgate kolom. Uit ervaring is gebleken dat een aandrijving onder de grond tot veel storing leidt en veel onderhoud nodig heeft. Om deze reden heeft De Regt Staalproducten er voor gekozen de aandrijving altijd bovengronds te monteren. Een ander voordeel van het concept van De Regt Staalproducten is dat wij de gehele Speedgate kunnen opbouwen en testen in de fabriek. Na het opbouwen en testen wordt deze in zijn geheel getransporteerd. Dit draagt bij tot zeer korte installatie tijden op locatie!
Indien er zowel geen bovengeleiding als geen ondergeleiding kan worden toegepast, kan de Speedgate DR2 worden geleverd in een Trackless uitvoering.
De benodigde vouwende beweging van de Speedgate panelen wordt gerealiseerd door een innovatief systeem. Dit systeem zorgt voor een zeer soepele en gecontroleerde beweging van het Speedgate volgpaneel!
De Speedgate moet volgens de wet voldoen aan de norm EN 13241-1. Deze norm zorgt ervoor dat de Speedgate geheel veilig is tegen het beknelt raken van personen of lichaamsdelen. Om dit te verwezelijke is de Speedgate voorzien van een aantal veiligheidsvoorzieningen. Zo is de Speedgate standaard voorzien van rubbere veiligheidslijsten en fotocellen (CAT 3). Niet al het beklemmingsgevaar is echter af te schermen met deze voorzieningen. Ook het ontwerp van de Speedgate draagt bij tot een geheel veilig concept.

